Là công ty lớn uy tín hơn 10 năm trong lĩnh vực thiết kế xây dựng. Công Ty Kỳ Lâm tự hào là công ty xây dựng lọt vào top 10 trong danh sách xếp hạng công ty xây nhà phố uy tín tại Thành Phố Buôn Ma Thuột Đak lăk. Vì vậy qua bài viết sau, chúng tôi mang đến cho bạn có một cái nhìn tổng thể về bảng báo giá thiết kế nhà phố cũng như những yếu tố quan trọng liên quan.
Bảng đơn giá thiết kế nhà phố:
1. Bảng giá thiết kế nhà tân cổ điển:
- Chưa có nội thất 3D: 140.000 đ/m2 – 160.000 đ/m2
- Có nội thất 3D: 180.000 đ/m2 – 200.000đ/m2
2. Đơn giá thiết kế nhà mái thái:
- Chưa có nội thất 3D: 120.000 đ/m2 – 150.000 đ/m2
- Có nội thất 3D: 170.000 đ/m2 – 190.000đ/m2
3. Báo giá thiết kế nhà phố hiện đại:
- Chưa có nội thất 3D: 100.000 đ/m2 – 120.000 đ/m2
- Có nội thất 3D: 150.000 đ/m2 – 180.000đ/m2
Chú ý: Nhà phố 2 mặt tiền cộng thêm 10.000 đ/m2
Cách tính diện tích xây dựng quý khách xem
Tùy vào thực tế của ngôi nhà phố để có những mức báo giá phù hợp, thông thường sẽ dựa theo các tiêu chuẩn như:
Mức độ cầu kỳ của ngôi nhà phố, nhiều hoặc ít chi tiết, đơn giản hay phức tạp để có báo giá phù hợp với yêu cầu thực tế từ chủ nhà.
Diện tích thiết kế, chi phí sẽ căn cứ vào tổng giá trị công trình.
Đối với những thiết kế đặc biệt như nhà có mặt tiền ở hẻm nhỏ, nhà có 2 mặt tiền, báo giá thiết kế sẽ được tính toán chính xác và hợp lý.
Lưu ý: Giá trên chưa bao gồm thuế giá trị gia tăng (VAT)

Hồ sơ thiết kế nhà ở bao gồm những gì?
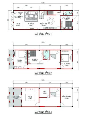
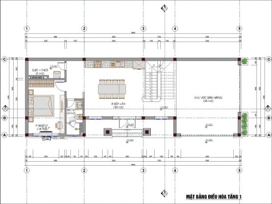
A. Phần kiến trúc
- Tổng mặt bằng ngôi nhà, thể hiện vị trí của công trình trên khu đất.
- Mặt bằng bố trí nội thất các tầng thể hiện đầy đủ vị trí các thiết bị nội thất như giường, tủ, bàn ghế, thiết bị vệ sinh.
- Mặt bằng triển khai các tầng thể hiện đầy đủ chi tiết các kích thước để triển khai tường xây phần thô.
- mặt đứng triển khai thể hiện khai triển từ hình ảnh phối cảnh tổng thể trên phương diện 2D .
- Mặt cắt thể hiện các tầng, vị trí cấu tạo phía bên trong công trình
- Các chi tiết cấu tạo thể hiện chuyên sâu hơn về cấu tạo các chi tiết mặt tiền, mặt bên .
- Chi tiết thang, như chiều cao bậc, bề rộng bậc, chi tiết mũi bậc.
- Chi tiết vệ sinh, vị trí các thiết bị như bệ, chậu rửa, thoát sàn.
- Chi tiết cửa, thể hiện cấu tạo chi tiết các cửa, như chất liệu, số lượng, vị trí cửa các tầng.

B. Phần kết cấu
- Mặt bằng móng, chi tiết cấu tạo mặt cắt móng,thép móng ,cao độ móng….
- Mặt bằng chi tiết cột, thể hiện chi tiết các thanh thép,đường kính thép…..
- Mặt bằng, mặt cắt thang bộ thể hiện chi tiết các thanh thép,cao độ cầu thang
- Mặt bằng định vị dầm, thể hiện chi tiết các thanh thép .
- Mặt bằng chi tiết sàn thể hiện các thanh thép.
- Mặt bằng lanh tô, chi tiết các thanh thép, chiều dài, chủng loại, số lượng.

C. Hệ thống điện
- Mặt bằng chiếu sáng các tầng, các loại thiết bị chiếu sáng
- Mặt bằng ổ cắm, thể hiện vị trí các ổ cắm ,CB Máy lạnh….
- Mặt bằng đường internet, truyền hình cáp, điện thoại.
- Các chi tiết cấu tạo phần điện như lắp đặt thiết bị.

D. Hệ thống nước
- Mặt bằng cấp thoát nước tổng thể các tầng .
- Mặt bằng cấp nước từng tầng .
- Mặt bằng thoát nước từng tầng .
- Chi tiết cấp nước vệ sinh .
- Chi tiết thoát nước vệ sinh + Sơ đồ cấp thoát nước không gian.

E. Phối cảnh mặt tiền
- Bản vẽ phối cảnh mặt tiền ngôi nhà
- Bố cục, đường nét, phong cách của ngôi nhà ở mặt tiền.
- Các chi tiết: chủng loại, vật tư được sử dụng cho mặt tiền……
Câu 1: Khi xây cất nhà xong, Kiến trúc sư có thiết kế hay tư vấn sắp đặt, mua đồ nội thất cho tôi không?
KTS sẽ tư vấn chọn lựa vật liệu trang thiết bị nội thất & sản xuất nếu chủ nhà yêu cầu, chi phí sẽ tính riêng theo thoả thuận 2 bên, hay theo tỷ lệ phần trăm (%) giá trị các trang thiết bị. Hoặc khoán hẳn một con số cụ thể cho KTS.
Câu 2: Mất thời gian bao lâu để nhân được bản vẽ cơ sở khái quát ngôi nhà & bản vẽ thiết kế?
Bảng vẽ cơ sở gồm mặt bằng & phối cảnh, mất 5 đến 7 ngày để hoàn thành. KTS hay đơn vị thiết kế cùng bàn bạc thống nhất về ý tưởng thiết kế, quan điểm với chủ nhà. Sau khi thống nhất bản vẽ hoàn chỉnh. Đơn vị thiết kế sẽ đi xin cấp phép xây dựng. Đợi khi có GPXD thì bản vẽ chi tiết kỹ thuật, bố trí điện nước và kết cấu. Thời gian hoàn thành sẽ mất tầm khoản từ 1 đến 3 tháng , sẽ tùy thuộc vào độ phức tạp của công trình
Câu 3: KTS thiết kế làm gì cho tôi? Cụ thể là có những loại bản vẽ nào sẽ cung cấp cho tôi?
KTS có công trường để điều chỉnh thiết kế, xây dựng hay không?”
Chủ đầu tư trả tiền phần công việc nào thì tính tiền phần đó, 1 công trình trung bình có 5 bộ bản vẽ (bản vẽ thiết kế, bản vẽ hiện trạng, bản vẽ điều chỉnh trong quá trình xây dựng, bản vẽ hoàn công, bản vẽ sử dụng thay đổi công năng thiết kế khi sử dụng).
Bản vẽ xin phép xây dựng sẽ làm theo quy định của cơ quan cấp phép xây dựng. Tính tiền riêng không bao gồm dịch vụ khác với đơn giá theo quy định tại các cơ quan liên quan từ quận cho đến sở.
Câu 4: Kinh nghiệm của công ty thiết kế?
Với đội ngũ hàng chục KTS, kỹ sư dày dạn kinh nghiệm, Công Ty Thiết Kế Xây Dựng đã hoạt động trên 10 năm, với hàng trăm công trình lớn nhỏ đã hoàn thành trên hầu hết các tỉnh thành phía nam. Chúng tôi tin rằng sẽ bảo đảm mang đến cho quý khách hàng những công trình không chỉ mang tính thẩm mỹ mà còn lâu bền theo thời gian.
Câu 5: Giá tư vấn được tính như thế nào?
Nếu làm theo bài bản cho một công trình có quy mô lớn thì biểu giá tư vấn được tính theo quy định. Nếu một số công tác khác không có trong bảng giá thì sẽ có sự thoả thuận giữa hai bên.
Về ý hỏi “Nếu thuê công ty thiết kế, trả tiền ra sao, tính như thế nào?” Theo quy định thiết kế biểu giá được chia làm ba đợt: 25 đến 30% ứng trước, thêm đến 90% sau khi nhận được đầy đủ hồ sơ thiết kế về kiến trúc, điện, nước, kết cấu, dự toán, 10% cuối thanh toán sau khi công trình hoàn thành đưa vào sử dụng.
Quảng cáo nội thất Kỳ Lâm
Địa chỉ: 36 Y Wang – P.Eatam – TP.Buôn Ma Thuột
Hotline/Zalo: 0947 802 878
Email: quangcaonoithatkylam2016@gmail.com
Website: www.quangcaonoithatkylam.com
Fanpage: Quảng cáo nội thất Kỳ Lâm






